情報更新日:2026年04月10日/広告有効期限:なし
表示閲覧回数(過去30日間):102
お急ぎの方はお電話からお気軽にどうぞ!
088-855-8870 営業時間 / 10:00〜17:30 定休日 / 日曜・祝日
>物件詳細情報
| 基本情報 | |
|---|---|
| 物件番号 | 10007805943 |
| 店舗形態 | 事務所, 店舗 |
| オススメ業種 | 事務所, 塾・学校・教育関係, 美容関係 |
| 物件名 | カーサ・ローズヴェール |
| 物件の状態 | 空き |
| 引越し時期 | 相談 |
| 契約形態と期間 | |
| 所在地・交通 | |
|---|---|
| 所在地 | 高知県高知市高須(丁目)3-1-59 |
| 交 通1 | とさでん交通 東西線新木駅駅 徒歩1分 |
| 交 通2 | - |
| 賃料 | |
|---|---|
| 賃 料 | 176,000円(税込) |
| 敷 金 |
352,000円 |
| 礼 金 | 176,000円(税込) |
| その他 | |
|---|---|
| 備考 | 現状貸し。2026年7月よりインターネット設備導入予定!(月額利用料無料) 保証会社の利用による契約になります。初回保証料、更新料が別途必要です。 駐車場9台あり。(月額49,500円) |
| 建物 | |
|---|---|
| 建物構造 | 鉄筋コンクリート造 |
| 建物階建て |
地上5階 |
| 施工年月 | 2002(平成14)年 03月 |
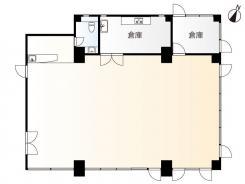
| 募集物件の階数 | 地上 1階 東号室 |
| 契約面積 | 154.98m2(46.88坪) |
| 設備 | |
|---|---|
| 水道 | 公営 |
| エアコン | 有 |
| トイレ | 有/専用 |
| キッチン | 有/専用 |
| 駐車場 | |
|---|---|
| 状 況 | 空有 |
| 駐車料金 | 49,500円(税込) |
| 空き台数 | 9台 |
| 取引情報 | |
|---|---|
| 取引態様 | 媒介 |
| 客付 | 可 |
この物件をチェックした人はこんな物件も見ています
- 元美容室

高知県高知市上町5-4-6
79.34m2(24.00坪)
110,000円(税込)
- 電車通り沿い 大橋通商店街すぐ 立体駐車場 空あります♪ すぐご案内可能です。お気軽にお問い合わせください。

高知県高知市本町3-1-1
226.48m2(68.51坪)
385,000円(税込)
- 産業道路沿い!1Fと2Fは中階段でつながってます! 1階22.86坪、2階22坪

高知県高知市和泉町-2-15
148.30m2(44.86坪)
253,000円(税込)
- 1階39.66坪、2階25.90坪

高知県高知市桟橋通5-1-44-8
216.78m2(65.58坪)
220,000円(税込)
- 元喫茶店

高知県高知市上町4
36.36m2(11.00坪)
65,000円(税込)
今日チェックした物件
お急ぎの方はお電話からお気軽にどうぞ!
088-855-8870 営業時間 / 10:00〜17:30 定休日 / 日曜・祝日


088-855-8870
















088-855-8870